STONE WAY

SEATTLE, WA

 

UNITS: 277

GSF: 339,453

MASTER USE PERMIT ISSUED: WINTER 2014

DEVELOPER: STONE WAY LLC

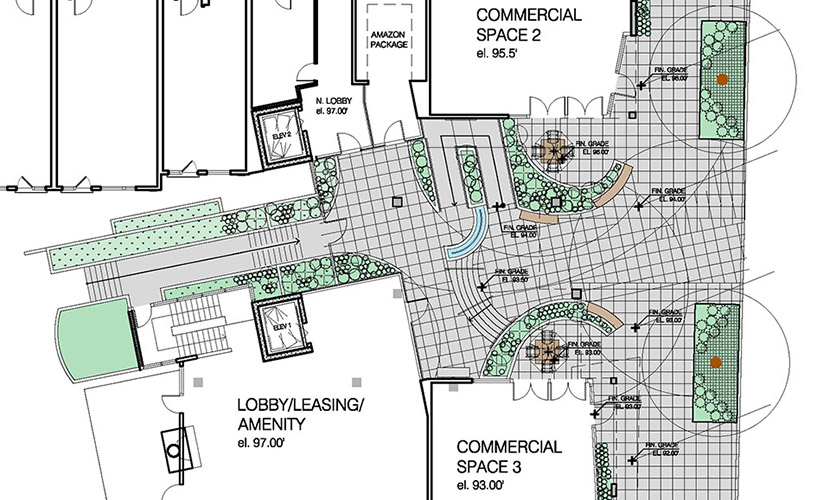
Located in the Fremont neighborhood, to the North of Lake Union, this mixed-use project consists of 277 residential units with parking for 262 cars. 188,298 gsf in residential use, 6,094 gsf in commercial use, and 7,241 gsf of amenity space. Average unit size is 680 gsf with 12% Studios, 67% Open 1/'s/1/1's, 18% 2/2's and 3% Live-Work Units

Photorealistic renderings by Studio/216

  • HOME
  • PROJECTS
  • CONTACT
  • PROFILE
Stone Way Stone Way Stone Way Stone Way Stone Way Stone Way Stone Way Stone Way Stone Way Stone Way Stone Way Stone Way
PROJECT DETAILS